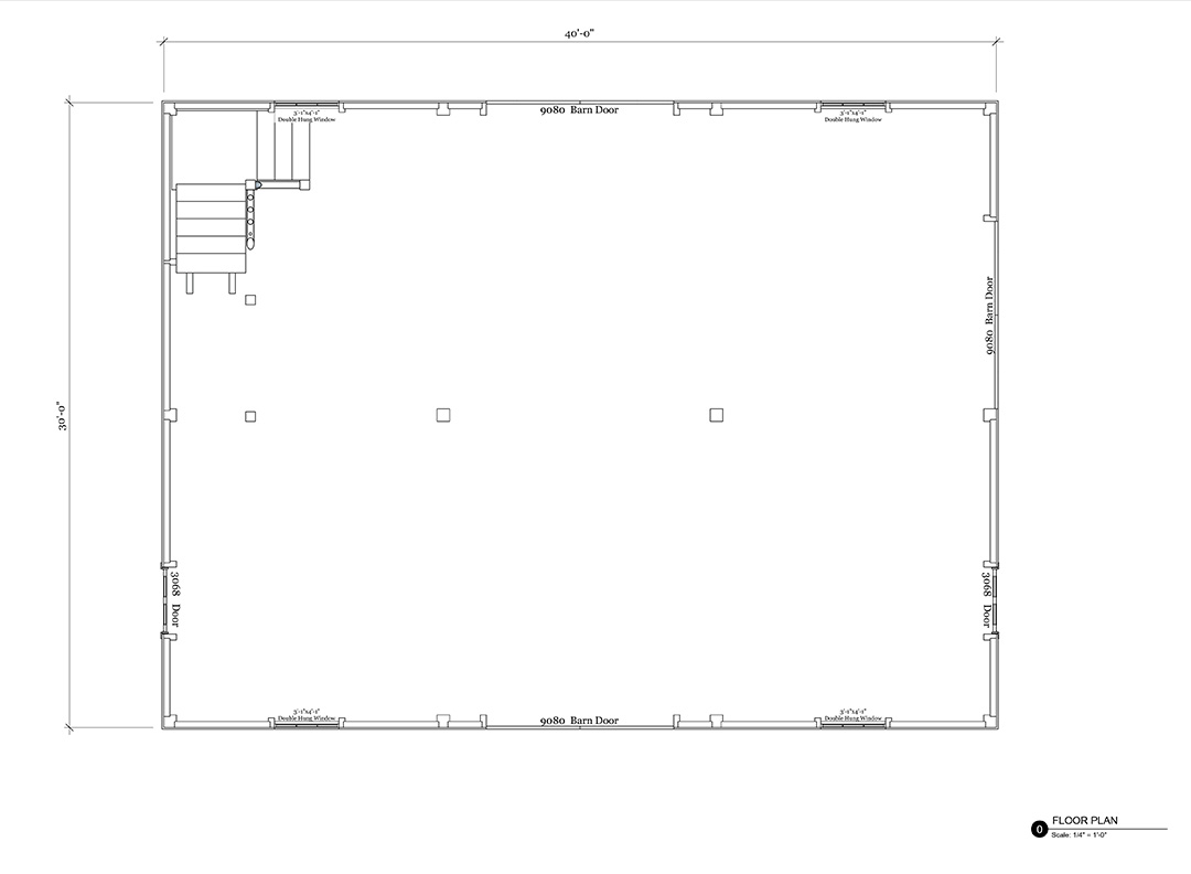
St. George Barn
30’ x 40’
$126,497
The St. George Barn is a versatile structure with features that make it suitable for various uses. Its three large doors facilitate easy access, enabling its utilization for storing equipment or operating as a workshop. The spacious loft provides the potential for transforming the entire barn into a comfortable living space. The combination of these options and the beauty of this heavy timber construction make this barn an attractive choice.











